
Op een vakantiepark in de Charante Maritime staan drie luxe bungalows te koop voor €249.000 (in één koop) inclusief inventaris. De huizen hebben ieder hun eigen inrichting en charme. Ze staan op royale kavels met de daarbij behorende privacy.
‘Maison Deux’ is de kleinste met 2 slaapkamers en 1 badkamer. De andere twee bungalows ( ‘Maison Onze’ en ‘Maison Treize’) hebben elk 3 slaapkamers en 2 badkamers. De compleet ingerichte keukens zijn allemaal voorzien van een grote koelkast, vaatwasser, magnetron en een elektrische kookplaat. Ook ontbreekt een wasmachine niet. In iedere Maison staat een flatscreen tv met een Canal Digital aansluiting.
In 2019 zijn alle twee persoons bedden vervangen voor boxsprings.
Aan Maison Deux is een afsluitbare multifunctionele opbergruimte gebouwd van 20 m².
MAISON DEUX






Gerenoveerd
2010
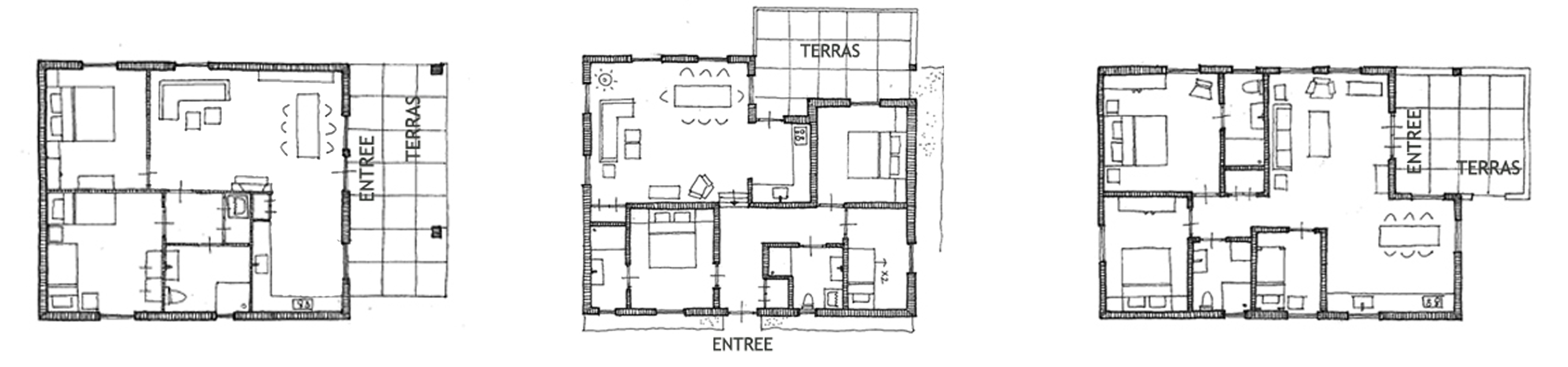
Slaapkamers
2
Badkamers
1
Kavel
556 m²
Oppervlakte
80,2 m²*
* Woonoppervlakte 60,2 m² en bergruimte 20 m².
MAISON ONZE







Bouwjaar
2010
Slaapkamers
3
Badkamers
2
Kavel
721 m²
Oppervlakte
103,5 m²
MAISON TREIZE





Bouwjaar
2010
Slaapkamers
3
Badkamers
2
Kavel
1673 m²
Oppervlakte
93,6 m²
MAISON DEUX
MAISON ONZE
MAISON TREIZE

OVER HET PARK
De bungalows zijn gelegen op het bosrijke vakantiepark Etang Valier, net buiten Brossac.
De unieke ligging aan het meer biedt vele mogelijkheden aan watersportliefhebbers of voor zonaanbidders op het strand. Vanaf het park zijn er uitgebreide fiets- en wandelroutes uitgestippeld of u kunt met de auto door de talrijke dorpjes en over pittoreske weggetjes toeren.
Het park zelf is glooiend met schaduwrijke bomen die bescherming bieden tegen de hete zomerzon. De bungalows staan verspreid in de bosrijke natuur en de grote stukken grond rondom bieden veel privacy.
FACILITEITEN
Op het park zijn de volgende faciliteiten aanwezig:
Restaurant
Snackbar
Zwembad
(Zwem) meertje
Midgetgolf baan
Waterski baan
Fiets verhuur
HET PARK
HET ZWEMBAD
VERKOOP
Deze drie moderne vakantie bungalows staan samen te koop voor een bedrag van €249.000.
De bungalows kunnen gekocht worden voor eigen gebruik of doorverhuur.
CONTACT
Belangstelling voor dit bijzondere recreatie project?






